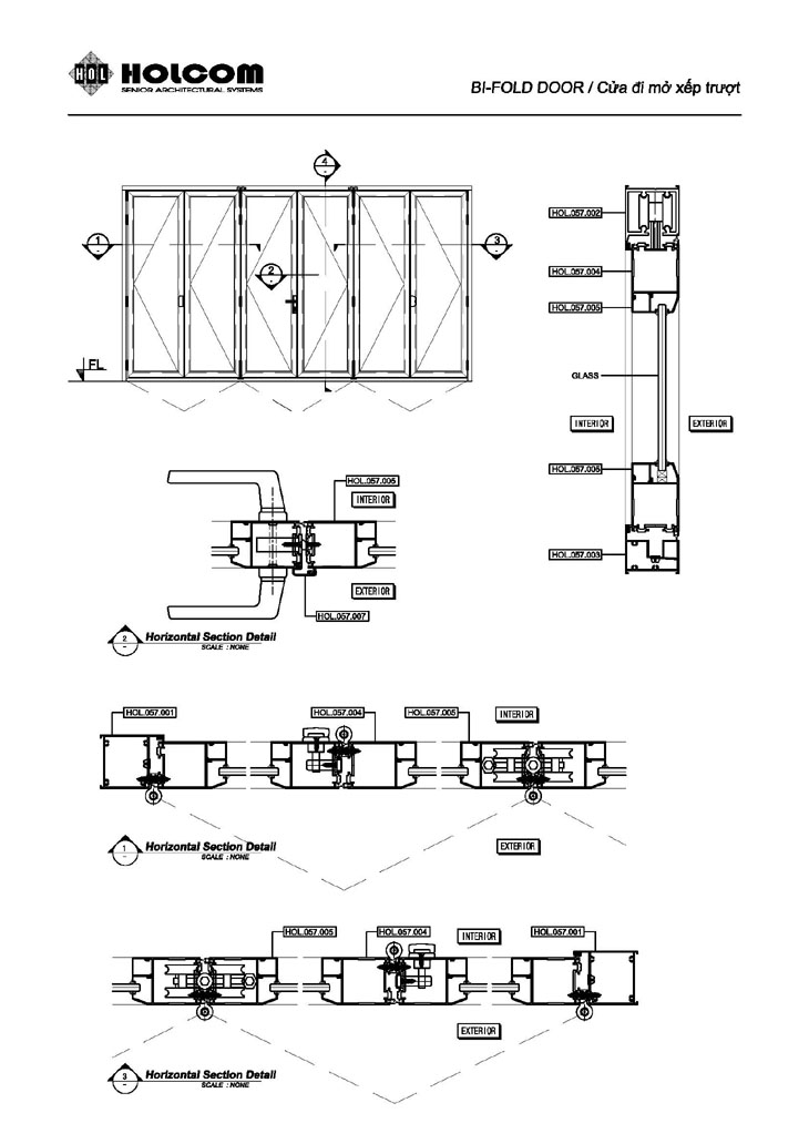
Cửa đi Xếp - Trượt
Cửa đi xếp trượt HOLCOM có hệ ray trượt phía trên & dưới được bố trí sẵn trong khuôn cửa, cho phép bánh xe treo của cửa được lắp đặt chìm trong khuôn cửa, giúp cửa vẫn có thể đóng mở nhẹ nhàng đồng thời mang tính thẩm mỹ cao.
Với chiều cao từ ~57mm đến 60mm so với mặt sàn, cửa thường được bố trí ở vị trí đi ra vườn, ra ban công,... Trường hợp bố trí cửa ở vị trí cửa đi chính vào nhà hoặc vị trí cửa có phương tiện đi qua, khuôn cửa phía dưới thường được đặt âm xuống sàn nhà.






